Офис по адресу БЦ Актив Парк

БЦ Актив Парк
1 519 680 ₽/месяц
+ комунальные услуги

Объект № 465-752

Тип сделки: Аренда
Тип недвижимости: Коммерческая, Офис
Район:Пионерский
Этаж:3/3
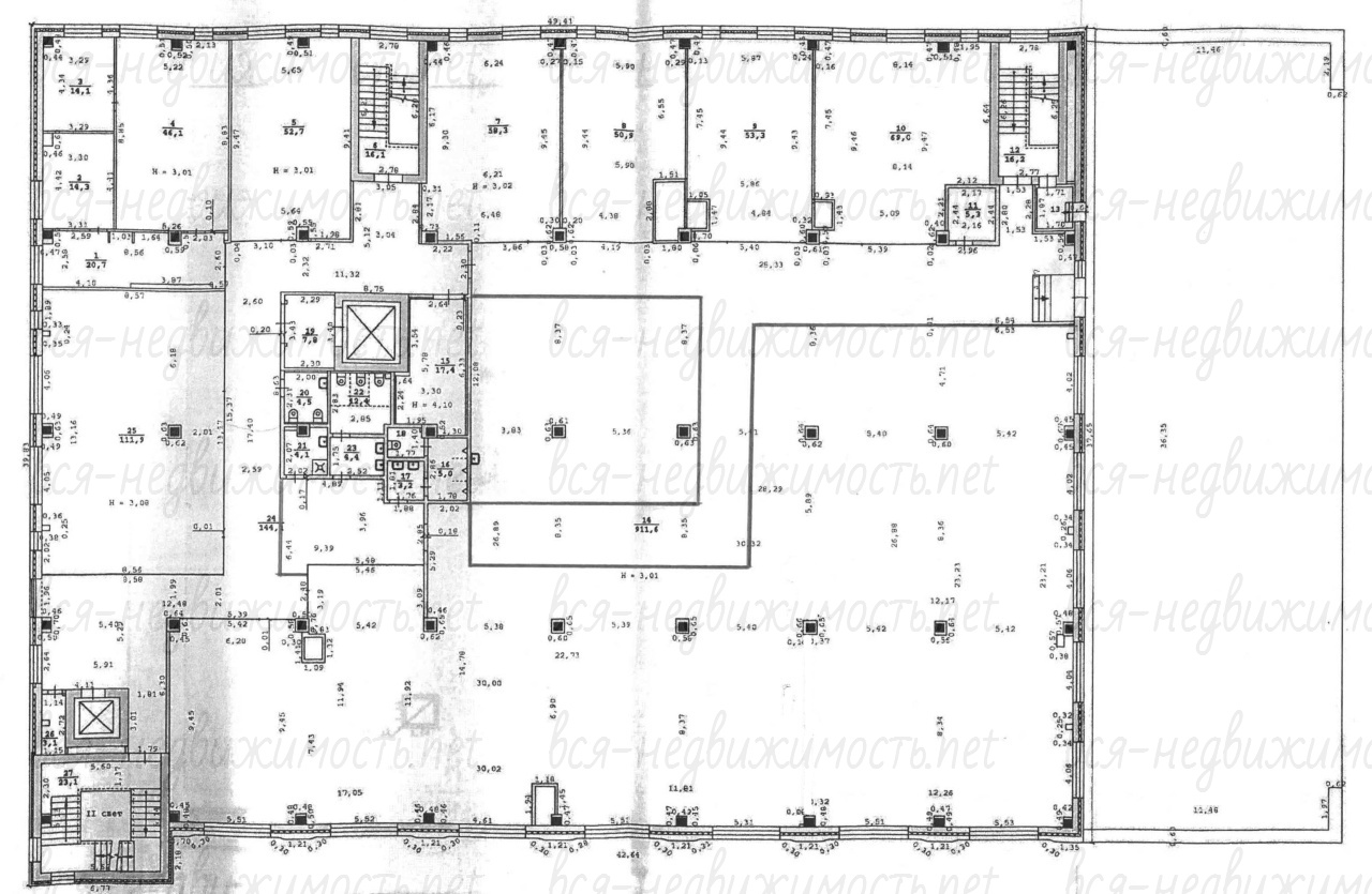
Площадь: 1583 м2
Залог: 1 519 680 ₽
Описание

Сдается в аренду офис - этаж 1583м2 в здании БЦ Актив Парк по ул. Сулимова, 46.
Отличное помещение для организации офиса в великолепном состоянии какое еще нужно поискать.
Своя парковка на прилегающей территории.
Готовое к использованию помещение. Только что сделан косметический ремонт.
Современный дизайн. Гибкая функциональная планировка. Есть группы кабинетов, открытые пространства и зона для переговорных. Четыре группы санузлов.
Все в отличном состоянии.
Возможно организовать до трех входов для персонала или клиентов.
И очень разумные коммунальные платежи.

БЦ Актив Парк введен в эксплуатацию в 2011 году. Оснащен всей современной инженерией. Управляется квалифицированной управляющей компанией.
Хорошая локация рядом с ТЦ Парк Хаус.
Вблизи остановки автобуса и троллейбуса. Близко в 5-7 мин на авто до жд вокзала и центра.
1-й этаж - торговые площади м-ны Магнит, Магнит Косметик
2-3-й этаж - административные площади

ХАРАКТЕРИСТИКИ ПЛОЩАДЕЙ В АРЕНДУ
- 3й этаж - весь
- общая площадь помещений в аренду - 1 583м2 (есть возможность увеличения до 3 200м2 - 2й этаж или 4 100 м2 - 2й и часть 1го этажа)
- возможность организации изолированного контура с контролем доступа на этаж
- 3 входа
- высота потолков чистовая - 3м
- качественная отделка помещений, только что сделан косметический ремонт после арендатора
- четыре группы санузлов на этаже
- интернет/телефония
- центральное кондиционирование
- приточно-вытяжная система вентиляции
- пожарная сигнализация и пожаротушение
- автопарковка на прилегающей территории
- складские площади в подвале для мелкоштучного хранения и документации

коммунальные платежи оплачиваются дополнительно

Фотографии объекта
Расположение на карте
1 519 680 ₽/месяц
+ комунальные услуги

Вас может проконсультировать

Заикин Сергей
+7 (343) 247-81-20
Показать контакты