Новостройка по адресу г. Екатеринбург, б-р. Золотистый, д.13

г. Екатеринбург, б-р. Золотистый, д.13
6 900 000 ₽

Объект № 398-1780

Тип сделки: Продажа
Тип недвижимости: Жилая, Новостройка
Район:Солнечный
Этаж:3/16
Площадь: 57 м2
Жилая площадь: 22 м2
Площадь кухни: 21 м2
Мебель: Нет
Тип дома: Спецпроект
Материал дома: Монолит
Санузел: Раздельный
Балконы/лоджии: 1/0
Описание

Предлагаем новую 2-х комнатную квартиру по переуступке прав coбcтвeнноcти в coвpeмeнном микрорайоне «Солнeчный».

Проект «Солнечный» реализуется компаний ЭТАЛОН-ЕКATЕPИHБУРГ, Блок 6.3.

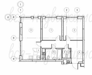
Квapтиpa pаcпoложeнa на 3 этаже, окна выходят на променадную улицу. Срок передачи ключей запланирован на 30 июня 2027 года.

Общая площадь составляет 57,2 квадратных метров, включая две комнаты площадью 10,30 и 10,20 кв. м., кухню-столовую 18,90 кв.м., совмещённый санузел — 4,40 кв. м., санузел — 1,80 кв. м., коридор - 11,60 кв.м; высота потолков достигает 2,72 метра. Внутренняя отделка предусматривает подготовку стен и полов перед финишной отделкой. Из окон открывается вид на променадную улицу.

Преимущество данной планировки позволяет произвести перепланировку и из 2-х комнатной квартиры сделать 3-х комнатную.


Территория двора благоустроена ландшафтным дизайном, оборудована зонами для занятий спортом, отдыха и развлечений. Неподалеку раскинулся парк с комплексом спортивных площадок, игровых зон и мест для прогулок.

«Солнечный» представляет собой проект комплексной жилой застройки с низкой плотностью зданий, уникальной современной архитектурой, высококачественным благоустройством общественных пространств и комфортными условиями проживания. Маленькие здания, удобные внутридворовые пространства без автомобилей, живописные пешеходные маршруты, зелёные аллеи, системы организации парковки, строительство надземных автостоянок.

Инфраструктура микрорайона развита и включает:

- остановочные комплексы городского пассажирского транспорта (автобус, маршрутное такси, трамвай);

- торговые точки различного формата (супермаркеты, продуктовые магазины, рестораны, кафе, бары, пункты доставки товаров, аптечные сети, медицинские учреждения, крупные торговые площадки);

- дошкольные образовательные учреждения, общеобразовательная школа,
Фотографии объекта
Расположение на карте
6 900 000 ₽

Вас может проконсультировать

Брызгалова Екатерина
+7 (912) 246-60-55
Показать контакты