г. Екатеринбург, ул. Викулова, д.78
1 100 000 ₽
Объект № 28-26441
| Тип сделки: | Продажа |
| Тип недвижимости: | Коммерческая, Склад |
| Район: | ВИЗ |
| Этаж: | 12/24 |
| Площадь: | 6 м2 |
| Мебель: | Нет |
Описание
Продаем кладовку на этаже в новом жилом комплексе «Видный».
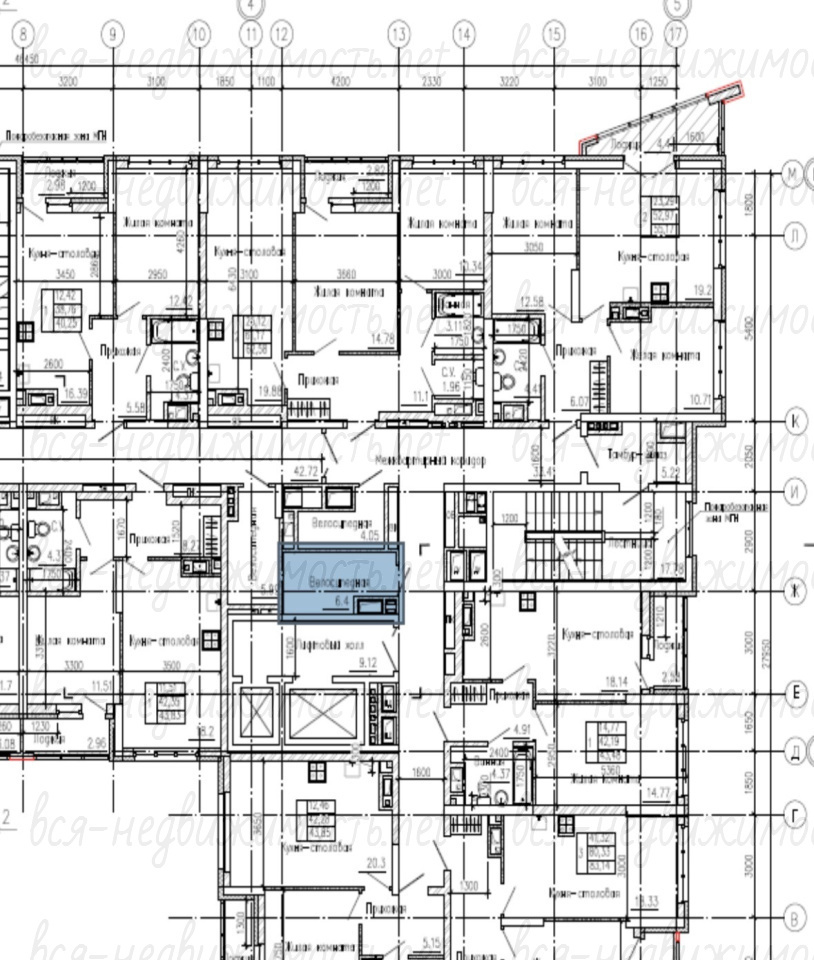
12 этаж, кладовая 6,4 метра находится рядом с лифтовой шахтой, имеет отдельный вход. Всего на этаже таких кладовых 3, квартир на этаже 10-11.
12 этаж, кладовая 6,4 метра находится рядом с лифтовой шахтой, имеет отдельный вход. Всего на этаже таких кладовых 3, квартир на этаже 10-11.
Фотографии объекта
Расположение на карте