Квартира по адресу г. Екатеринбург, ул. Викулова, д.24

г. Екатеринбург, ул. Викулова, д.24
12 500 000 ₽

Объект № 16-977

Тип сделки: Продажа
Тип недвижимости: Жилая, Квартира
Район:ВИЗ
Этаж:17/18
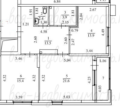
Площадь: 71 м2
Жилая площадь: 29 м2
Площадь кухни: 22 м2
Мебель: Нет
Тип дома: Улучшенной планировки
Ремонт: Требует косметического
Санузел: Совмещенный
Балконы/лоджии: 1/0
Описание

Жилой комплекс «ТАКТИКА» расположен в границах улиц Татищева, Викулова и Венгерских Коммунаров, адрес Викулова, 24, вблизи Акватории пруда Верх-Исетского района.

Дом повышенного комфорта предлагает: современный и безопасный двор, ландшафтный дизайн, пространство для отдыха на крыше и фитнес клуб с бассейном.

Максимальное удобство и доступность городской инфраструктуры, остановки общественного транспорта, трамвайная линия. Благодаря удобному расположению остановок, вы сможете сэкономить время на поездках и легче планировать свои маршруты.

Благоустройство. Закрытый двор комплекса, создает место безопасности и удобства, созданное для семейного отдыха и детских игр. Среди элементов — веревка альпиниста, балансировочные столбики, змейка и подвесной гамак. Есть детские карусели и деревянные качели на любой вкус: классические и качели-гамаки. Двор полностью свободен от машин, что гарантирует безопасность и спокойствие для всех его обителей.

Для взрослых во дворе воркаут-зона с кардио-тренажёрами, силовой и атлетический комплекс. А также настольный теннис и пространство для йоги на открытом воздухе. В комплеске размещен фитнес-центр с бассейном.

В 5 минутах от жилищного комплекса 4 школы, ещё 3 — в 10 минутах, в том числе школа №1, построенная в 2019 году по последнему слову техники. Рядом 7 садиков, среди них два премиальных детских сада «Согласие», 15 учреждений дополнительного образования, например, школа программирования «Алгоритмика» и Международная школа скорочтения.

В 10 минутах ходьбы — детская поликлиника №11, «Новая больница» и «Детский доктор». В 15 минутах езды горбольницы №41, №40 и центральная городская больница №2, в радиусе 1 км медицинские центры «Бонум», «Шанс», «Панацея», «Хеликс» и «Парацельс».

Особенная архитектура. Холл жило

Фотографии объекта
Расположение на карте
12 500 000 ₽

Вас может проконсультировать

Фунтикова Наталия
+7 (912) 228-74-88
Показать контакты