Дом по адресу с. Благословенка, ул. Гранитная, д.66

с. Благословенка, ул. Гранитная, д.66
7 199 000 ₽

Объект № 582-191

Тип сделки: Продажа
Тип недвижимости: Жилая, Дом
Этаж:-/1
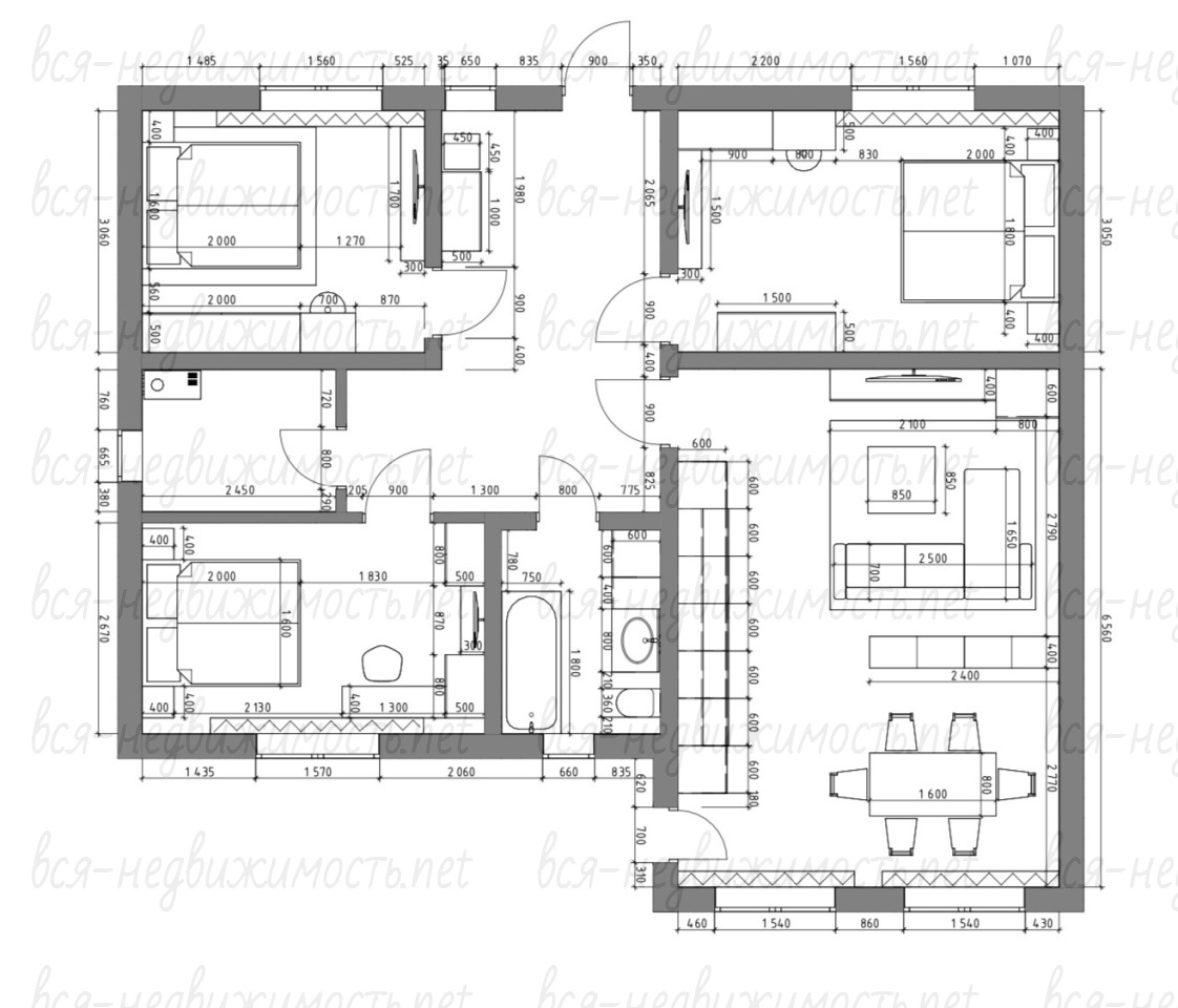
Площадь: 115 м2
Жилая площадь: 37 м2
Площадь кухни: 21 м2
Площадь участка: 6 сот
Материал дома: Кирпич
Описание

Продается дом с навесом для автомобиля 115 м2 с забором по 3-м сторонам и навесом для автомобиля в самом развивающемся коттеджном поселке Марьино!
В шаговой доступности планируется строительство школы и детского сада!!!

Общaя площaдь дома 115 м2, pасполoжeн на учaстке 6 соток. ИЖС!!!
НЕЗАТОПЛЯЕМАЯ ТЕРРИТОРИЯ!!! ЦЕНА ОТ ЗАСТРОЙЩИКА!!!

Подойдет для комфортного проживания большой семьи вдали от города и суеты.

Конструктив дома.
Фундамент: свайно-ростверковый (бетон М200).
Стены: керамзитоблок 20 см, утеплитель 10 см, облицовочный кирпич, отмостки, дорожка до крыльца, отмостка
Крыша: металлочерепица с гидро-паро-изоляцией, вентиляция, потолок утеплитель 20 см.

В пpедчистoвую oтдeлку вхoдит: стены заштукатурены по маякам и отшпаклеваны под обои или покраску, выполнена полусухая стяжка пола, по дому разведены канализационные и водопроводные трубы, электрика, качественные пластиковые окна, откосы, подоконники, проложены теплые полы, установлены радиаторы отопления под каждым окном, двухконтурный газовый котел, качественная металлическая входная дверь.

Планировка: кухня-гостиная 29 м2 с выходом на террасу и панорамными окнами, 3 спальни по 15,11 и 11 м2, санузел 5 м2 и котельная 3,6 м2, коридор 15 м2, крыльцо. Дом оборудован крытым крыльцом и навесом для парковки автомобиля.

Коммуникации: свет, газ и вода (скважина снаружи в колодце) заведены в дом и установлены счетчики, канализация септик (3 кольца).
Дом сдается с полностью запущенными коммуникациями.
В 2026 году планируется подведение к поселку центрального водоснабжения!!!

Дом теплый, просторный и светлый. Участок выровнен, завезен плодородный слой чернозема.

Перспективный поселок, инфраструктура села Благословенка (школа, детский сад, магазины, аптека, OZON). Дороги зимой чистят, в поселок ходит школьный автобус. Дом находится в шаговой доступности от остановки школьного автобуса (6

Фотографии объекта
Расположение на карте
7 199 000 ₽

Вас может проконсультировать

Погорелов Дмитрий
+7 (987) 847-66-22
Показать контакты