Новостройка по адресу г. Октябрьский, ул. Шашина, д.28

г. Октябрьский, ул. Шашина, д.28
4 399 000 ₽

Объект № 535-2802

Тип сделки: Продажа
Тип недвижимости: Жилая, Новостройка
Этаж:8/14
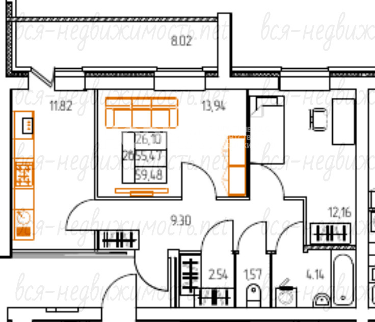
Площадь: 59 м2
Жилая площадь: 26 м2
Площадь кухни: 12 м2
Мебель: Нет
Тип дома: Спецпроект
Материал дома: Кирпич
Санузел: Раздельный
Балконы/лоджии: 0/1
Описание

Продается 2-комнатная квартира в динамично развивающемся районе!

? Адрес: Шашина, 28

Этаж: 8 (с лифтом)

Ищете идеальное жилье для своей семьи или выгодное инвестиционное предложение? Эта квартира — ваш шанс! Удобная многофункциональная планировка и просторные комнаты создают комфортное пространство для жизни.

Основные преимущества:

• Просторная кухня — идеальное место для кулинарных экспериментов и семейных ужинов.

• Комнаты правильной квадратной формы — легко расставить мебель и создать уют.

• Гардеробная комната — достаточно места для хранения вещей и поддержания порядка.

• Раздельные санузлы — комфорт и удобство для всех членов семьи.

• Застекленная лоджия — дополнительное пространство для отдыха или рабочего уголка.

• Высокие потолки (2,7 метра) — создают ощущение простора и легкости.

Квартира предлагается с предчистовой отделкой: ровные стены под обои, гидроизоляция и стяжка пола, окна с пластиковым профилем — всё готово для вашего индивидуального дизайна!

Полностью кирпичный дом с собственной котельной микрорайона.

✔️ Просторный вестибюль и отдельная колясочная для жителей.

✔️ Благоустроенный двор с детскими и спортивными площадками — комфорт для всей семьи.

✔️ В шаговой доступности «Ледовый дворец» для активного отдыха.

Сдача объекта запланирована на 3 квартал 2026 года.
Застройщик — ГК «Кирпич Холдинг», известный своим качеством и надежностью.

В микрорайоне планируется строительство школы, детского сада и спортивного комплекса, что делает его идеальным для семей с детьми.
Во дворе уже имеется большая современная детская площадка с мягким покрытием.


Не упустите возможность стать владельцем этой замечательной квартиры!
Звоните

Фотографии объекта
Расположение на карте
4 399 000 ₽

Вас может проконсультировать

Кадырова Гульнара
+7 (937) 331-93-99
Показать контакты